728 Mink Ct,
Kissimmee, FL 34759

-Verano Builders ©
728 Mink Ct,<br> Kissimmee, FL 34759 728 Mink Ct,<br> Kissimmee, FL 34759

728 Mink Ct,
Kissimmee, FL 34759

INCLUDED FEATURES

  • Engineered for 160 MPH Winds
  • INTERIOR DESIGN FEATURES
    • Textured Walls and Knock Down Ceilings
    • 4/5 Ceiling Fan Pre-wires
    • 2 Telephone outlets – your location
    • 2 TV Cable outlets – Your location
    • Food/Waste Sink Disposal
    • Privacy Door Locks all Bedrooms
    • Marble Window Sills
    • Shaw Carpet in Bedrooms
    • Smoke/Carbon Monoxide Detectors per code
  • BEAUTIFUL EXTERIOR
    • Concrete Block Construction (Lower Part)
    • Mildew Resistant Architectural Shingles with Limited Lifetime Warranty
    • 2 Weather Proof GFI Outlets one in front and one in rear
    • 2 Exterior Faucets one in front and one in rear
    • Fiberglass Smooth 6 Panel Front Door with Dead Bolt Lock
    • Steal Garage Door+
    • Fully Sodded Lawn
    • 4 Trees and 20 Shrubs
  • ATTRACTIVE KITCHEN AND BATH FEATURES
    • Granite Counter Tops
    • 17X17 Tile in Great Room, Kitchen, and Wet Areas
    • Built-in Energy Star Dishwasher
    • Deluxe Glass Top Range
    • Built-in Microwave (Part of your Eco-Star Energy Package)
    • Breakfast Bar and Nook area (per plan)
    • Decorative Oak or Maple Cabinets
    • Under Mount Double Kitchen Sink with Sprayer Faucet
    • Water Supply Line for Ice Maker
    • Moën Faucets or Similar
    • Over-Sized Pantry for Storage (per plan)
    • Beautiful Solid Shower Units and Surrounds
    • Vanity Mirrors in all Baths
    • Decorative Light Fixtures in Baths
    • Full Washer and Dryer Connection
    • Ventilated Vinyl Coated Shelving
    • Water Saving Toilets and Shower Heads

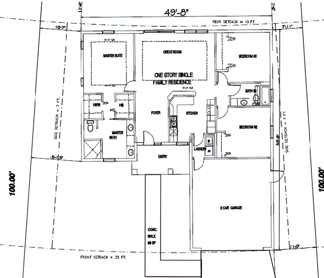
  • • 3 BEDROOMS  • 2 BATHS  • KITCHEN  • GREAT ROOM  • LANAI  • 2 CAR GARAGE 


  • All dimensions are approximate because we are always improving our homes. We reserve the rights to substitute building materials, appliances and fixtures, like kind and quality, and to change features, options and architectural details without prior notice. Some models may be reversed from floor plan. Refrigerator, washer and dryer are shown for placement purposes only and are not included in sales price. Windows, ceiling and front porches may differ by elevation.